![]() |
| Design Plans and Kitchen Concept for the Australia Project, by Carol Reed Interior Design |
While its not out of the ordinary for me to travel a few hours drive to a clients weekend retreat or summer cottage, or even have the opportunity to fly back and forth to work on a project in Manhattan… being asked to design a whole home renovation on the other side of the world is not a request I get every day. In addition to my full-service projects I've always oferred a selection of limited e-design services for homeowners across North America but I limit this type of consulting to single rooms only. Last year I made an exception when I took on the whole home re-design of a residence in Australia, as a hybrid full-scope/e-design.
![]() |
| Kitchen and Dining Before. |
Before we could delve into new finish materials, design details or furniture, we had to start with reworking the floor plan. Here’s a look at the floor plan I started with. Its single storey, with no basement, and an attached garage (to the left side of the house), the back of the house and balcony overlook a beautiful green conservation area. The windows across the front and sides of the house are partial height, the windows across the back extend to the floor. Lengthways from one end of the house to the other, the ceiling slopes up to a centre peak.
The house was very divided with lots of interior doors and there is no basement or attic space. The main objective was to update all the fixtures and finishes as well as create a more open concept living, dining, cooking space. A dedicated storage room had to remain as well as a home office large enough to accommodate two workspaces. Lastly a new master suite was on the must have list. As for finishes, they wanted sleek, modern, all white, and natural wood floors with the addition of colourful artwork and accessories.
When I first reviewed the plan and the exterior photos, my instinct was to move the kitchen and dining areas to the back part of the house so they could enjoy the view and direct indoor/outdoor access. Below is a look at the final layout we arrived at….
The new plan provides them with a long open concept great room, with slope cathedral ceiling and views overlooking the conservation area. New retractable doors will allow them to have an expansive opening to the exterior and new sliding doors directly off the kitchen so they can access the bar-b. The den has ample room for both of them, an oversize sliding glass pocket door allows them to close it off when they have company. The laundry is combined with the storage room and will have a futon for overflow guests who need a place to crash (beyond the two spare bedrooms). The main hall bath gains a vanity with storage and a tub shower combo, the master ensuite gets a sleek walkin shower with trough drain and floating vanity and the 4th bedroom was converted into a maser walk-in closet.
I know from experience often the first reaction people have when they see floor plan is to critique it, and often wonder "why is that so big, or why is that so small" or think "what if we move this here and that there?". I think that's natural and expected, especially if you weren't part of the planning process in getting from a to b. Its the reason I don't ever present a client with just one layout - because even if they love it, they'll wonder if they are overlooking any other possibilities. There are some Designers who believe its best to present one solution only, but this method never served well for me despite how confident I might be with any given plan, I believe clients have expectations of being offered choices. I like to present only the best options and let them be involved in making choices from there. There is never just one way to slice up a space and the possibilities can vary greatly in budget and personal preference. Below is a glimpse of where I started reviewing layouts with them and where we ended up at the final new layout.
_ _ _
The first concepts were based on their idea of moving the laundry out of the kitchen and into the main hall bathroom (stacked units) in lieu of the existing shower stall. Besides the obvious disadvantages to this placement, it had some benefits worth considering. (At this point we weren't exploring the master bedroom changes until the living areas were determined.)
This concept was the least amount of change, but still offered lots of improvement with a new centre island kitchen opened up to the living room. Initially this was the extent of the renovation they had envisioned before contacting me - a new kitchen with a bigger opening to the living room.
Some more walls came down in this layout to further open up the kitchen, dining and living rooms and get more exposure to exterior views and light.
Next even more walls came down. Sections of the centre wall needed to remain as its the main supporting wall. Although not noted in this sketch the laundry would again be in the bathroom. What was lacking at this point was a larger home office (Study) and the laundry situation was still being debated.
The next three concepts explored the idea of placing a stacked washer dryer to replace the hallway linen closet, allowing us to add a larger vanity with storage into the main hall bathroom with the tub/shower combo.
This one was getting there but the main concern was still the Study was too small, and ideally I wanted to explore the idea of putting the kitchen along the back of the house instead of the storage room….
This was getting really close to where we finally ended up but the need for a larger laundry area was being realized.
And this was the almost final layout. The laundry was combined with the storage room, and also a futon for the occasional overflow of guests. When we began the space planning the intent was that all the windows and exterior doors in the house were being replaced and the exterior re-clad in a new finish. We intended to work with all the existing window locations as is but the homeowners were also investigating if they could increase the amount of windows across the back living room wall. But because of the bush fire hazards in their area, their local by-laws (and property insurance) restricted them from changing their window configurations/sizes at all. Which meant this kitchen plan, requiring modifying a window to work with the fridge,,,was out.
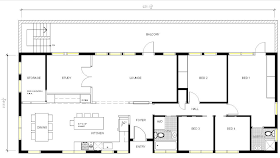
So one more round of tweaks led to this final layout below (also shown earlier in the post)…...
The final kitchen layout ended up being a U shape with centre island. After the engineer's review, we had to also incorporate a supporting stud wall immediately to the left of the sliding doors beside the fridge so this area got squeezed a bit smaller. This new plan gives them one large living and entertaining space with cathedral ceiling, direct access to the balcony and wonderful views. The double office has lots of natural light, and its wide entrance flows off the main room, and their bathrooms and closet space were upsized and enhanced.
So I hope you enjoyed this peek into the space planning process and how we arrive at any particular final floor plan with a client. Taking the client thru this process assures them they have made the best possible decisions and they move forward with confidence, even if the scope of the renovation doubled (!). Following this space planning we developed the details for the kitchen and baths and selected all the new interior finish materials and fixtures compiled into a set of working drawings (which involved working in metric and learning some new jargon!). I''ll share more of the design concepts in another post.
G'day ; )
All drawings and images by: Carol Reed Interior Design Inc.









